Local comercial 36 mtrs en Alquiler Ubicado en Villa Crespo, CABA
Detalles de la propiedad
Tipo de propiedad Localidad/Partido
Local Villa Crespo

































Local
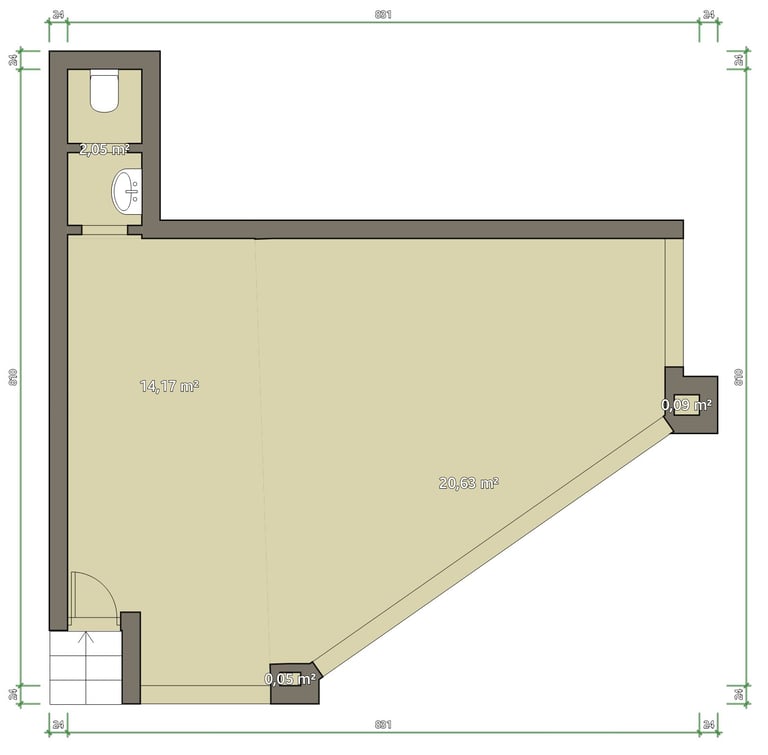
36.85 m² Total
1 baño
Excelente
40 años
Sin expensas
Via Pública
Vidriera
Ultima Actividad - Kinesiologo
Información básica
Ambientes: 1
Baños: 1
Expensas: Sin Expensas
Antigüedad: 40 años
Superficies
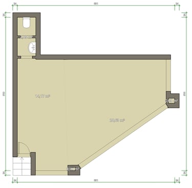
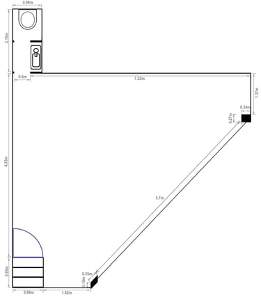
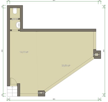
Superficie cubierta: 36.85 m²
Frente del terreno: 7.22 m
Largo del local: 5.58 m
Servicios del local
Agua corriente
Electricidad
Agua cloaca
Local comercial a la calle de 36.85m2 (con un frente de 7.22 mts de ancho y 5.58mts de fondo), ubicado en la ezquina Camargo y Serrano, a mts de Av Corrientes y Av. Juan B Justo, y a 4 cuadras de estacion Malabia de subte linea B.
Tiene LUZ electrica, AGUA, CLOACA, y no tiene gas. Con VIDRIERA a la calle de 8.6 mt aprox y un baño privado. Todo en excelente estado. SIN EXPENSAS. Ideal local (Inmobiliaria, Carniceria, Heladeria, Confitería, Cafetería, Granja, Barberia, Salon de tatuajes, Tienda, Rapi Pago, etc) / oficina publico con atencion al publico (Escribanía, Estudio Jurídico Contable, etc.)
En metros esta Templo Camargo - "ACISBA" y Centro de formación profesional "CETIC".
En medio cuadra de Escuela Scholem Aleijem Primaria, en una cuadra de Escuela preparatoria Scholem Aleijem y Escuela primaria "FRANCISCO D. HERRERA", en 2 cuadras de Institución educativa "ETER - Escuela de Comunicación", en 3 cuadras de Escuela Media "Artes Y Medios".
Descripción
Requisitos de ingreso:
Contrato 2 o 3 años (Plazo a convenir)
Mes en adelanto---
Dos meses de depósito en garantía--
Garantía propietaria de CABA (excluyente)
Demostración de ingresos
SIN Honorarios inmobiliarios (Dueño directo)
Requisitos de ingreso:
Plazo a convenir
Garantía propietaria de CABA (excluyente)
SIN Honorarios inmobiliarios (Dueño directo)
Contáctanos

